ما هي نصف مقطورة مسطحة؟
نصف المقطورة المسطحة هي نوع من المقطورات التي تحتوي على سرير مفتوح ومسطح بدون أي جوانب أو سقف. يتم استخدامه بشكل شائع لنقل البضائع كبيرة الحجم وغير المنتظمة التي لا يمكن استيعابها في مقطورة مغلقة قياسية.
الميزة الرئيسية لشبه المقطورة المسطحة هي تنوعها وقدرتها على حمل مجموعة واسعة من البضائع، بما في ذلك الآلات ومواد البناء والمركبات والمعدات الكبيرة. يتيح السطح المسطح للمقطورة سهولة تحميل وتفريغ البضائع، كما يوفر المزيد من المرونة في تأمين ونقل أنواع مختلفة من البضائع.
تُستخدم مقطورات الحاويات المسطحة بشكل شائع في صناعات مثل البناء والزراعة والتصنيع، حيث يلزم نقل البضائع كبيرة الحجم أو الثقيلة. كما أنها تستخدم عادة لنقل البضائع لمسافات طويلة، لأنها توفر منصة مستقرة وآمنة لنقل البضائع.
بشكل عام، تعد الحاويات المسطحة أداة أساسية للشركات التي تحتاج إلى نقل البضائع الكبيرة أو غير المنتظمة بأمان وكفاءة. إن تنوعها وسهولة استخدامها يجعلها رصيدًا قيمًا لمجموعة واسعة من الصناعات والتطبيقات.
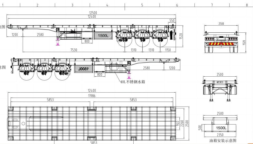
فيما يلي البيانات المأخوذة من وزن الشاحنة نصف المقطورة المسطحة







 
                   
                   
                  